Маркетплейс имущества с торгов

Объект долевого строительства: Квартиры ...

№ 874949Размещено: 01.10.25 11:31
Санкт-Петербург
Описание
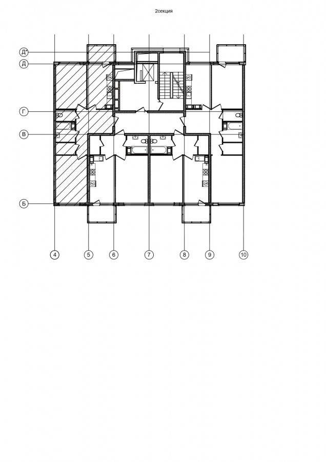
Объект долевого строительства: Квартиры класса комфорт-плюс в жилом комплексе «Уют» в г. Санкт-Петербург, ул. Герасимовская, д. 5 к.2: 28 (Двадцать восемь) квартир в секции (подъезде) 2 (все квартиры в указанной секции дома) строящегося жилого дома, срок сдачи дома 2 квартал 2026 года, общая площадь квартир 1297,76 кв.м
Объект долевого строительства: Квартиры класса комфорт-плюс в жилом комплексе «Уют» в г. Санкт-Петербург, ул. Герасимовская, д. 5 к.2: 28 (Двадцать восемь) квартир в секции (подъезде) 2 (все квартиры в указанной секции дома) строящегося жилого дома, срок сдачи дома 2 квартал 2026 года, общей площадью 1297,76 кв.м., в составе квартир: 3-й этаж: квартира 231, 2-х комнатная квартира, общей площадью 58,06 кв.м., квартира 232,1-х комнатная квартира, общей площадью 37,64 кв.м., квартира 233,1-х комнатная квартира, общей площадью 37,64 кв.м., квартира 234, 2-х комнатная квартира, общей площадью 58,06 кв.м., 4-й этаж: квартира 241, 2-х комнатная квартира, общей площадью 56,81 кв.м., квартира 242,1-х комнатная квартира, общей площадью 36,71 кв.м., квартира 243,1-х комнатная квартира, общей площадью 36,71 кв.м., квартира 244, 2-х комнатная квартира, общей площадью 56,81 кв.м., 5-й этаж: квартира 251, 2-х комнатная квартира, общей площадью 56,81 кв.м., квартира 252,1-х комнатная квартира, общей площадью 36,71 кв.м., квартира 253,1-х комнатная квартира, общей площадью 36,71 кв.м., квартира 254, 2-х комнатная квартира, общей площадью 56,81 кв.м., 6-й этаж: квартира 261, 2-х комнатная квартира, общей площадью 56,81 кв.м., квартира 262,1-х комнатная квартира, общей площадью 36,71 кв.м., квартира 263,1-х комнатная квартира, общей площадью 36,71 кв.м., квартира 264, 2-х комнатная квартира, общей площадью 56,81 кв.м., 7-й этаж: квартира 271, 2-х комнатная квартира, общей площадью 56,81 кв.м., квартира 272,1-х комнатная квартира, общей площадью 36,71 кв.м., квартира 273,1-х комнатная квартира, общей площадью 36,71 кв.м., квартира 274, 2-х комнатная квартира, общей площадью 56,81 кв.м., 8-й этаж: квартира 281, 2-х комнатная квартира, общей площадью 56,81 кв.м., квартира 282,1-х комнатная квартира, общей площадью 36,71 кв.м., квартира 283,1-х комнатная квартира, общей площадью 36,71 кв.м., квартира 284, 2-х комнатная квартира, общей площадью 56,81 кв.м., 9-й этаж: квартира 291, 2-х комнатная квартира, общей площадью 52,82 кв.м., квартира 292,1-х комнатная квартира, общей площадью 32,76 кв.м., квартира 293,1-х комнатная квартира, общей площадью 32,76 кв.м., квартира 294, 2-х комнатная квартира, общей площадью 52,82 кв.м., Дом возведен. Материал наружных стен и каркаса объекта: С монолитным и сборно-монолитным железобетонным каркасом и стенами из монолитного железобетона и сборных однослойных железобетонных навесных панелей. Материал перекрытий: Сборно-монолитные железобетонные. Кадастровый номер земельного участка: 78:10:0513701:3. Проектная декларация № 78-002053 от 25.04.2024.
Кадастровый N
78:10:0513701:3
Площадь
1853.0 м²
Кадастровая стоимость
59 045 625,60 руб.
Собственников
1
Ипотека
Нет
Залог
Нет
Арест
Нет
Обременения
75
Текущая цена:
381 412 500 ₽

Похожие лоты

Санкт-Петербург
1/23
+ 17 фото
Публичное предложение
7 965 405 ₽
Жилая недвижимость – квартира, кадастровый номер 78:40:08501...
Торги до: 17.03.26 09:00
Позвонить
Г. Санкт-Петербург
1/25
+ 19 фото
Публичное предложение
6 079 185 ₽
Квартира, кадастровый номер 78:12:0006345:3397 площадь: 40.6...
Торги до: 18.04.26 10:00
Позвонить
г. Санкт-Петербург
1/34
+ 28 фото
Публичное предложение
39 315 774 ₽
Квартира, площадь 170,4 кв.м., кадастровый номер 78:40:00192...
Торги до: 08.04.26 12:00
Позвонить
г. Санкт-Петербург
1/5
Публичное предложение
14 706 445 ₽
Квартира, к/н 78:13:0007446:2054, площ. 73,5 кв.м., этаж 24 ...
Торги до: 29.06.26 10:00
Позвонить